深圳北站民治中心
參考價格:|均價:
房屋戶型:1室 2室 3室
住宅類型:地鐵口
深圳市龍華區民治大道69號附近
區域介紹:項目位于大鵬新區溪涌片區,是市區前往大鵬半島的必經之路,毗鄰大小梅沙?!菊摺? 4億東進戰略,打造深圳東進橋頭堡【定位】
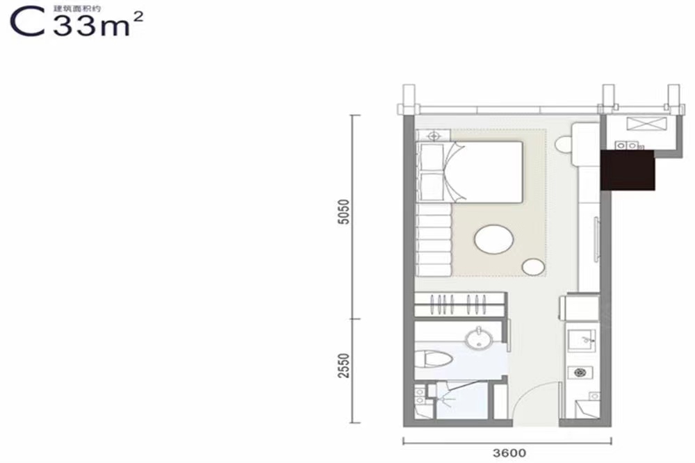
參考價格:40000~80000|均價:60000元/平
房屋戶型:3室 4室
住宅類型:地鐵口
深圳市大鵬新區葵涌街道1028號(深葵路與溪涌路交匯處)
華聯城市中心,地處粵港澳大灣區深圳南山核心區位,總建面約60萬㎡,分兩期開發。是華聯控股集團又一創新力作。華聯城市中心定位為前海之門
參考價格:|均價:68000元/平
房屋戶型:1室 2室
住宅類型:地鐵口
深圳市南山區南山大道與東濱路交匯處
中芯核心價值【福田腹地綜合體,共分為A B C三棟,約30萬體量,是集高端商務公寓、寫字樓、購物中心功能于一體的綜合體項目。其中A塔樓純甲
參考價格:40000~80000|均價:60000元/平
房屋戶型:1室 2室 3室
住宅類型:地鐵口
深圳市福田區石廈北二街與福民路交匯處
1?【地段】福田中心CBD,中樞之上市政商業環伺2?【交通】地鐵1、4號線上蓋,廣深港高鐵福田站3?【形象】墻面14萬顆LED燈,16 2m大堂挑高
參考價格:40000~80000|均價:77000元/平
房屋戶型:1室 2室 3室
住宅類型:地鐵口
福田中心區今田路與福華路交匯處